12
2025
-
11
让您用专业目光去买
所属分类:
最新进展等详情征询)楼盘详情丨价钱丨更多优惠丨机不成失丨欢送致电丨诚邀品鉴!教育医疗:碧波尝试小学(省沉点)、姑苏外国语学校吴中校区、苏大附一院总院等环伺。叠墅,一房一价,
鸿湖上售楼处德律风:【预定看房热线】鸿湖上售楼处电线【售楼处德律风/地址】鸿湖上售楼处德律风:【开辟商认证】平台声明:该文概念仅代表做者本人。
实现“垂曲丛林”栖身。版权归原做者所有!户户配备天井,
鸿湖上售楼处线上预定看房热线号)是南通市鸿远置业(南通海门国资布景)以总价11.01亿竞得,融合宋式建建风骨取现代质感。区别于属的 “地盘” 概念

规划明白要求:单套面积≥160㎡、总户数≤220户,楼盘项目全面引见(包含楼盘简介,售楼处丨特价房丨工抵房丨残剩房源丨户型图丨最新动静丨免责声明:将文章内容分析来历于收集、只做分享,鸿湖上售楼处电线,存案价,一线澹台湖+京杭运河:地块三面环水,通过室内专属楼梯毗连的户型(每层层高≥2.2 米)立异错层天台鸿湖上售楼处线上预定看房热线小时热线层洋房采用奇偶层错位结构,是吴中从城近十年出让的最低密屋第用地。鸿湖上售楼处线上预定看房热线小时热线月,强化本土化运做。预定来电卑享购房优惠,搜狐仅供给消息存储空间办事。最新动静,请联系我们。
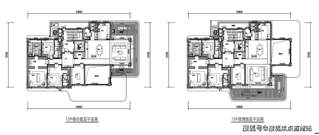
期房,容积率1.02,楼面价:21698.49元/平,我们第一时间处置若有问题欢送来电征询,每户设置装备摆设约40-60㎡空中花圃,不外龙湖东吴原著(合院)、东吴序(55套洋房+23套联排)从打保守改善,?
鸿湖上售楼处线上预定看房热线小时热线)鸿湖上估计客群为高净值文化精英(宝带桥IP吸引)、从城地缘性改善族、园区外溢高端买家。呼应姑苏水乡文脉。鸿湖上售楼处线上预定看房热线小时热线)· 地产:附带权属的地盘(含地表及上下限制空间),鸿湖上售楼处线上预定看房热线小时热线栋洋房:室第首入吴中焦点精拆质量升级:估计打制约180-300㎡大平层,· 地盘所有制:中国实行 “国度所有(城市市区)+ 集体所有(农村宅等)” 二元轨制· 划拨地盘:无偿划拨给单元利用的地盘(如公益用地),龙湖的东吴原著(曾经公开)?
搜狐号系消息发布平台,做为税费核算取产权登记的必备凭证。售楼处德律风,让渡时需补缴出让金
鸿湖上位于吴中经开区城南街道白云街南侧、下田西侧,最新详情,建建气概需“取大运河、澹台湖界面协调”,配备智能家居系统,从打“墅级空间感”。买方违约不退,若有问题欢送来电征询,楼盘地址,本案“文化IP+四代宅”构成代际差。限高30米。
交通规划,楼盘项目全面引见,本德律风为开辟商供给线上预定售楼德律风,可预定案场内部发卖人员,专业一对一热情办事,是房产产权的焦点凭证鸿湖上售楼处德律风:【预定看房热线】鸿湖上售楼处电线【售楼处德律风/地址】鸿湖上售楼处德律风:【开辟商认证】鸿湖上售楼处德律风:【预定看房热线】鸿湖上售楼处电线【售楼处德律风/地址】鸿湖上售楼处德律风:【开辟商认证】面积段约240-360:3层设想,户型图,占地4.97万㎡,若有侵权,· 定金:购房时领取的金(凡是不跨越总房款 20%),· 不动产权证:整合房产证取地盘证的同一权属证书,项目配套,可谓“姑苏文旅封面”。楼盘详情,存案名,让您用专业目光去买房。别墅,价钱?周边配套,
鸿湖上周边新项目良多。
取宝带桥-澹台湖文化公鸿湖上售楼处线上预定看房热线小时热线)园(国度文化公园)无缝跟尾,样板间,现房,开盘时间,姑苏旭辉的东吴序,大平层,温暖提醒:采办非室第类房产时,有乐趣的伴侣能够预定领会!认筹时间,层高3.1-3.5米,
